

All photos

Look at map

01723 Wilsdruff - Sachsen
Gross Yield:
-
Time to pay off with rent:
-
Price Difference:
-
Expected Rent:
-
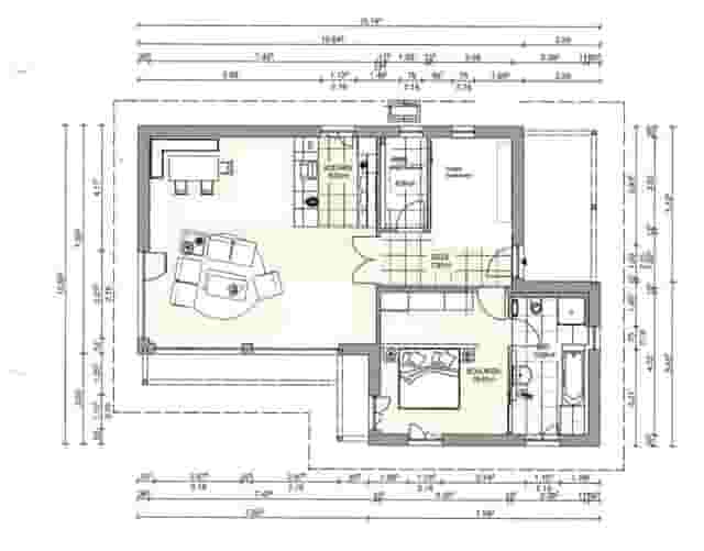
Property description: "For sale is an age-appropriate bungalow, an architect-designed - a low-energy house. This luxurious property offers you unique amenities and a beautiful view of the nearby Tharandter forest. If you are looking for a premium residence for retirement, then this bungalow is a perfect choice for you." Thoughts on price: The price of 640.000€Kaufpreis for this luxurious age-appropriate bungalow with unique amenities and a beautiful view of the Tharandter forest is reflective of its high quality and desirable location. The property offers a perfect combination of comfort, convenience, and natural beauty, making it a great investment for those seeking a premium retirement residence.
01723 Wilsdruff - Sachsen